快乐天使cd 当前离线
新生入学
风平浪静 (★CDC★风^ō^平)当前离线
疾控人
管理员
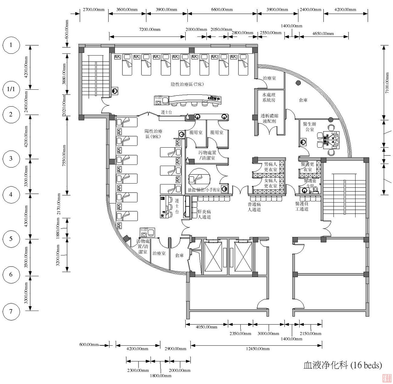
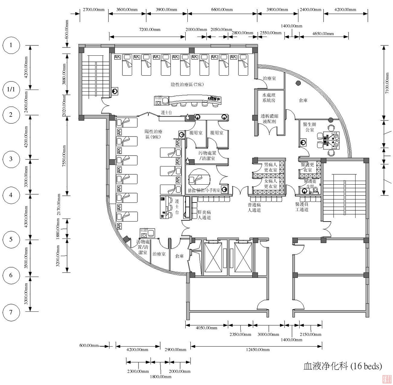
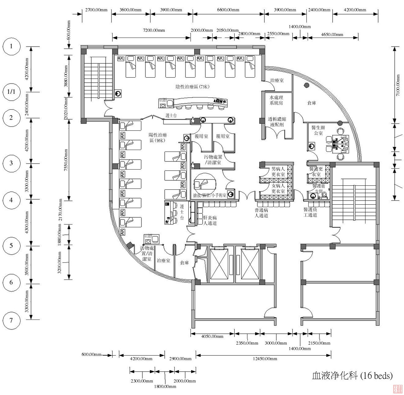
原帖地址:http://www.icchina.org.cn/bbs/viewthread.php?tid=7405&extra=page%3D1%26amp%3Bfilter%3Dtype%26amp%3Btypeid%3D2
TOP