
标题: [求助]血透室布局流程 [打印本页]
作者: 快乐天使cd 时间: 2008-10-6 16:46 标题: [求助]血透室布局流程
请有血透室布局流程的同仁上传一个!谢谢!
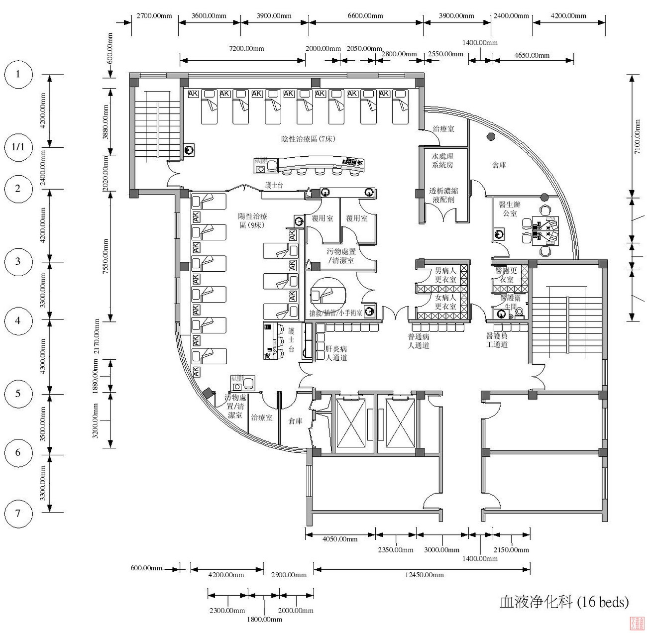
作者: 风平浪静 时间: 2008-10-6 20:53 标题: [转帖]某医院血液净化中心的设计图
原帖地址:http://www.icchina.org.cn/bbs/viewthread.php?tid=7405&extra=page%3D1%26amp%3Bfilter%3Dtype%26amp%3Btypeid%3D2
图片附件: [[求助]血透室布局流程] ltdQsV0f.jpg (2008-10-6 20:53, 270.84 KB) / 下载次数 963
http://www.cdcman.com/attachment.php?aid=3228&k=589b6a4c712c4cdcf7371e226dd12c8d&t=1776404069&sid=khheeD

| 欢迎光临 疾控家园 (http://www.cdcman.com/) |
Powered by Discuz! 7.2 |